ccsh, 해담은 마당집 2022 / Dong-myeon, Chuncheon-si, Gangwon-do, Republic of Korea
우리마을 첫 집
─
소양강 동쪽 구봉산 자락, 개발사업으로 조성된 주택단지임에도 동남향으로 열린 풍광으로 포근한 분위기를 풍기는 이 마을에 첫 번째 집이 지어졌다. 아이가 마음껏 뛰어놀 수 있는 집을 바란다는 의뢰인 부부의 이야기에 건축가는 좁은 골목길을 누비며 숨바꼭질하던 유년 시절을 떠올렸고, 이를 집에 투영해냈다.
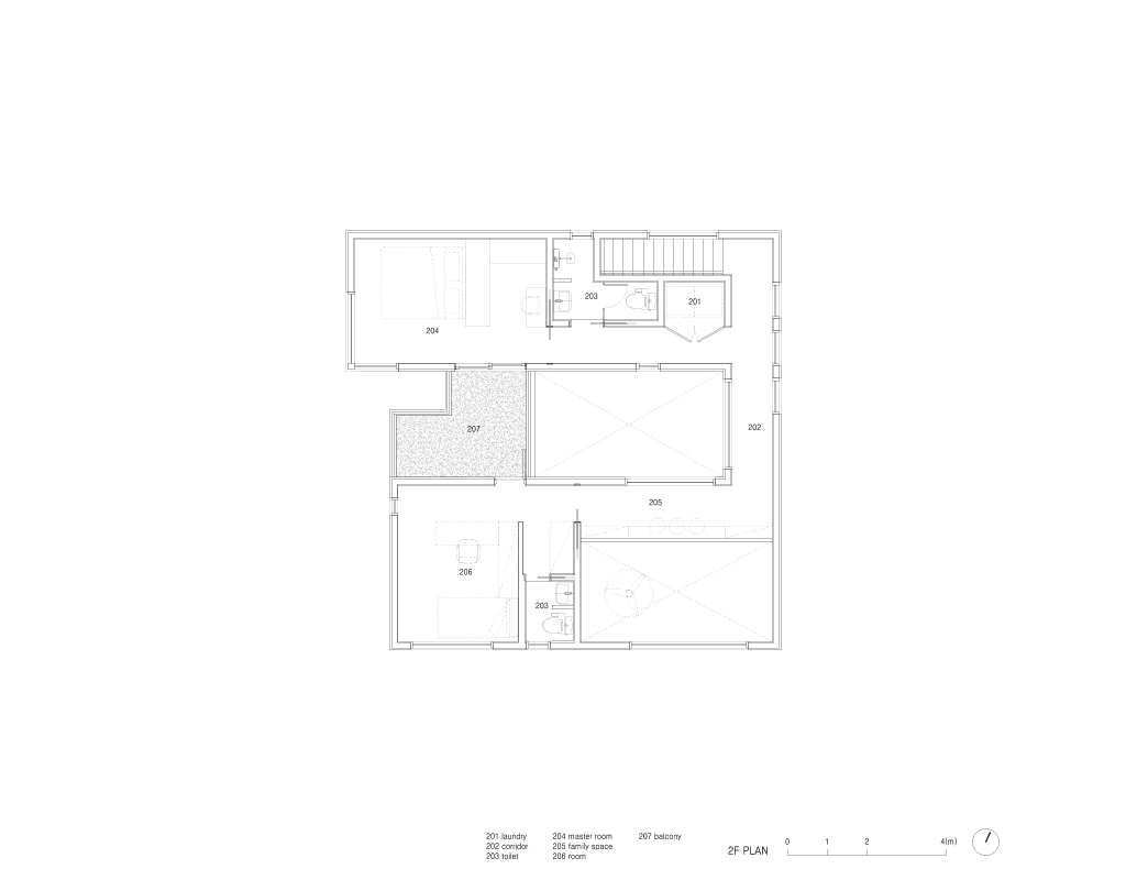
집은 'ㄷ'자 형태의 생활공간과 세 개의 마당을 갖는다. 건폐율 20%라는 제한 안에서 외부공간을 크게 하나로 쓰기보다는 적절한 면적과 용도로 나누어 집 안에서도 다양한 스케일을 경험하고, 마당을 보다 유용하게 사용할 수 있도록 계획된 것이다.
그 중심이 되는 중정 마당은 건물에 진입하는 사람을 맞이하는 공간이자 식당과 거실의 외부공간 역할을 한다. 이에 더해 중정을 향해 기운 경사지붕이 빛을 흘려보내면, 중정은 매시간 다양한 모습으로 산란하는 빛의 모습을 가득 담아낸다.
내부 공간은 진입구임을 알리는 노란 통로를 따라 시작된다. 1층에는 손님방과 주방, 식당, 두 개 층으로 시원하게 열린 거실이, 2층에는 부부방과 아이방, 가족공간이 있다. 1층과 180도 엇갈린 ㄷ자 평면 양 끝에 방이 배치된 2층에서는 두 방 사이 복도 겸 가족공간이 아이가 뛰어놀 집안 놀이터이자 가족이 모이는 소통공간이 된다.