 
 
 
 
 
 
 
 
 
 
 
 
 
 
 
 
ujcc
            
               Text 
                 
- ujcc, 운정2동 행정복지센터 _설계공모 입선작(5위) 
 2023 / Haesol-ro, Paju-si, Gyeonggi-do, Republic of Korea
 세개의 채, 하나의 단
 운정, 신도시, 공원
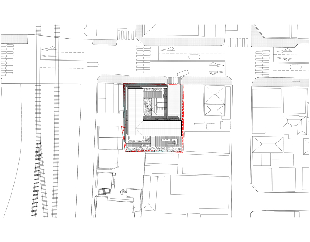
 대지는 운정신도시에 위치하며 경사가 없는 평지이다. 남동쪽으로 낮은 구릉지의 남두레 공원과 인접하고 북측에는 책향기로와 사이에 수목군과 함께 수로가 흐르고 있다. 남서측으로는 운정공동구 관리사무소가 있어 다양한 요소가 존재하는 주변과의 관계 설정이 중요한 입지이다. 운정신도시는 주요 공원들이 유기적으로 연결되도록 계획되어있으며, 대지에 접한 남두레 공원은 주변 학교와 아파트 단지와 엮여 북두레 공원으로 이어지고 있다.
 행정복지센터
 행정복지센터는 행정사무에서 복지, 문화, 체육시설이 결합된 커뮤니티 공간으로 변모되어 왔으며, 최근에는 특화시설이 결합된 복합공간으로 확장되는 추세이다. 운정 2동 행정복지센터는 본연의 기능에 충실하면서도 독립적인 아동보호센터를 위한 세심한 계획이 요구된다. 다양한 프로그램과 사람들이 모이는 장소를 유기적으로 작동하도록 하기 위해서 우리는 채와 마당으로 구성된 전통 가옥의 공간 배치에서 실마리를 찾을 수 있었다.
 하나의 단, 두개의 마당, 세개의 채_작은 마을
 공유의 마당
 지침상에 요구된 지상 레벨의 전기기계실을 인공적인 언덕으로 설정하고 이를 하나의 단으로 (EL+4.500)을 만들었다. 그 단 위에 3개의 매스를 배치하여 공유의 마당을 형성했다. 이 마당을 매개로 사용자는 자연(공원)과 연결되고 서로 연계된다. 공유의 마당은 행정복지센터의 주민이용시설의 사용자 및 민원인, 근무자, 아동보호시설의 사용자 모두가 공유하는 공간으로 2개의 외부계단과 내부의 공용홀을 통하여 마당으로 유기적으로 연결되고, 남두레 공원과 연계 가능한 다목적 외부공간이 된다.
 모두의 뜰
 북측 책향기로와 대지 사이에는 수목과 수로가 있어 대로의 혼잡함을 줄여주고 있다. 3개의 매스 중 하나를 남서측으로 밀착 배치하여 기존 녹지공간과 건물사이에 8.5미터 폭의 여유공간을 만들어 내었다. 이는 공유의 마당으로 향하는 자연스러운 연결을 만들어내고 남두레 공원과 연결되어 산책로를 형성하게 된다. 공유의 마당을 오르는 외부계단은 폭을 넓히고 형태를 조정하여 자연스럽게 행사와 휴식이 가능한 커뮤니티형 계단으로 구성하였다.기존 수목/수로공간이 확장되어 시민들에게 열린 휴식의 공간을 제공하는 모두의 뜰로 제안한다.
 유기적이고 유동적인 내부공간
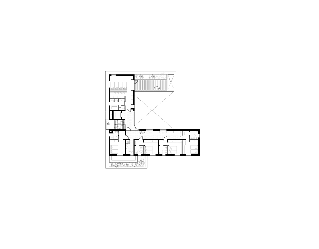
 채_1
 서측에 위치한 매스를 통해 주진입이 이루어지며, 공용 홀은 2층의 보이드와 연계되어 높은 공간감을 주고 공유의 마당과 공간적, 시각적으로 연계된다. 높은 층고와 함께 배치된 문화교실과 연계하여 다목적 전시공간으로 활용될 수 있다. 2층에는 열린 카페테리아가 있으며, 이는 공유의 마당과도 연결되어 시간에 따라 학생 조식, 직원 식당, 오후 카페로 가변적으로 활용할 수 있다. 3층에는 다양한 교육 프로그램을 수용할 수 있도록 가변형/높은 층고형 문화교실을 배치하였다. 4층에는 주민자치센터와 동대본부가 위치하며, 별도의 테라스를 계획해 편의성을 높혔다.
 채_2
 행정민원서비스 공간은 편의성을 높이기 위해 1층에 배치하고, 모두의 마당과 북측도로에서 수로를 건너 진입할 수 있도록 외부공간을 조정하였다. 채_1의 공용 홀에서 연결되며, 무인 민원은 출입구 옆에 배치해 주말에도 접근할 수 있도록 하였다. 기존 수목과 수로를 활용한 조경 계획은 민원실 대기 공간과 근접하여 좋은 조망을 제공한다. 아동시설은 2층에 배치되며 전용 출입구, 대기 공간, 치료실로 이어지는 간소한 동선과 독립적인 실들로 배치하였다. 대회의실은 3층에 두어 구조적 합리성을 높이고, 채1의 3층 문화교실과 연계해 활용할 수 있도록 했다. 대기 홀에는 충분한 여유 공간과 전용 화장실을 두고, 간단한 식음료 제공이 가능한 미니바와 소회의실을 배치해 평소에도 활발히 사용될 수 있도록 고려했다. 대기 홀 앞에는 공원 전망이 가능한 테라스가 있으며, 마당에서 이벤트가 있을 시 간이 객석으로도 활용 가능하다.
 채_3
 공유의 마당을 지나 낮은 별동으로 계획된 지역커뮤니티공간은 업무가 끝난 이후나 주말에도 개방이 가능하도록 고려하였다. 코워킹 스타일로 구성되어 주민들이 자유롭게 이용할 수 있도록 하고, 공원과 가까이 창가석을 제공하여 공원의 전망을 즐길 수 있도록 하였다.
 입면과 재료의 구성
 공유의 마당을 중심으로 구축된 3개의 채는 외부마당 – 공용홀 – 개별실의 순서로 구성되어 있으며, 마당을 향하여 적극적으로 열린 입면을 가지게 된다. 도로면에서는 300/600mm 간격의 루버를 사용해 열림과 닫힘을 조정하고, 일부를 통합해 리듬감을 부여함으로써 긴급 시 소방관의 진입구로 사용될 수 있도록 기능적으로도 작동하도록 계획했다.
 재료는 공원과 주변녹지와 색상이 비슷한 초록계열의 세라믹 루버와 컬러콘크리트, 유광타일을 혼합하여 사용하였다. 지붕의 형태는 자연스럽게 마당으로 모여들며, 산화동판을 사용하여 시간이 지나 자연스럽게 주변과 조화를 이룰 수 있도록 하였다.
 아이는 온 마을이 키운다. - 아동특화시설
 "한 아이를 키우려면 온 마을이 필요하다"는 아프리카의 속담처럼, 아이가 어른으로 성장하기까지는 사회 전체의 도움과 상호작용이 필요하다. 아동 문제는 이러한 사회적 역할이 개인에게 전담되기 때문에 가중된다. 이에 아동시설을 독립적이지만 다른 주민시설과 가까운 2층에 배치해 공유의 마당을 매개로 서로 상호작용하고, 지속적인 관심 속에서 돌볼 수 있도록 계획하였다.
 모여드는 장소, 연결되는 감각, 느슨한 연대
 운정2동 행정복지센터는 단순한 행정서비스만을 위해 방문하는 곳이 아닌, 마을내에서 사람들이 모이고 머물 수 있는 곳이 되어, 이곳에서는 자연과 연결되는 감각을 느끼고 서로 느슨하게 연대하는 소통의 장소가 되기를 기대한다.
 
 
 
 
 
 
 
 
 
 
 
 
 
 
 
jhwc
            
               Text 
                 
- jhwc, 살아봐요 장항 워케이션 
 2024 / Janghang-eup, Seocheon-gun, Chungcheongnam-do, Republic of Korea
 장항 워크+베케이션
 공공 공간
 장항 워케이션 계획안의 최우선 과제는 걷고 앉고 이야기 할 수 있는 공간을 자연스럽게 만들어내는 것이다. 대지는 밀집된 낮은 상업가로에서 폐철도 유휴부지와 만나는 결절점에 위치하고 있다. 작은 스케일의 건물들이 밀집되어 있는 가로변 사이에서 저층부를 일정 부분 후퇴하거나 비워냄으로서 그 곳을 이용하는 사람들에게 아늑함을 줄 수 있는 공간을 조성하는 것이 필요하다. 이에 우리는 이 계획안을 통해서 밀집된 상가 입면과 넓게 펼쳐진 철도 유휴부지 사이에서 적당한 스케일의 외부 공간을 제공함으로서 거리를 걷는 시민들이 오가며 자연스럽게 들어오거나 앉아서 쉴 수 있는 열린 하늘 마당을 제안한다. 이 마당을 통해 들어온 사람들은 사각 프레임으로 열린 하늘과 남쪽으로 향한 통로를 통하여 햇빛이 가득한 공간을 마주하게 된다.
 매스의 수평성과 비움
 저층부의 비워진 매스 아래로 접근하면 정면에 공유 다목적실의 개방영역으로 방문할 수 있다. 방문자가 외부 계단을 통하여 올라가게 되면 뉴트로 스테이의 비워진 마당 공간과 철도 유휴부지로 시선이 열려있어 중첩된 레이어로 열린 풍경을 바라볼 수 있다. 개방 업무 영역인 2층은 공유 오피스를 가로에 대응하는 수평적인 매스로 구성하고 북쪽 도로 방향으로는 최소한의 창을 남쪽 중정 방향으로는 큰 창을 계획하여 소음과 단열에 대비할 수 있도록 하였다. 최상층에는 스테이 공간을 계획하여 잠시 머무는 사람들의 사생활을 보호할 수 있도록 하였다.
 증축을 고려한 구조
 추후 증축을 고려하기 위하여 3층까지는 철근콘크리트로 계획하고 지붕은 경량목구조로 계획함으로서 수직 증축시 철거가 용이하도록 계획하였다. 목구조의 반복되는 모듈의 경쾌함이 스테이 영역에서 구조재로 들어나도록 구성하여 일상에서 벗어나 새로운 공간에 머물고 있음을 인지하고 즐길 수 있도록 하였다.
 프로그램 : 분절 그리고 병합
 WORK와 VACATION이 합쳐진 프로그램을 수직적으로 분리하여 배치하였다. 1층에는 다목적홀,다목적실,사무실 및 공공 개방 화장실을 배치하고 3층에는 스테이 공간을 두어 상층부로 갈수록 독립적인 공간 구성이 될 수 있도록 계획하였다.전면 개방되는 1층과 독립적인 3층 사이인 2층에는 중간 성격의 프로그램인 공유 오피스 및 스터디실 그리고 세탁실을 배치함으로서 느슨하고 우연한 스침과 만남이 될 수 있도록 의도하였다.
 재료와 입면
 상부의 박공 지붕을 지지해주는 기단부로서 저층부는 노출콘크리트를 사용하였다. 상층부는 벽돌을 사용하여 내구성이 뛰어나 경제적이며, 따뜻한 재료로 누구에게나 안락한 건물로 인지 할 수 있도록 하였다. 북쪽의 개구부는 에너지 부하를 최소화하기 위하여 개구부 대비 외벽의 비율을 높였고, 남쪽은 개구부 비율을 상대적으로 높였다.
 
 
 
 
 
 
 
 
 
 
 
 
 
 
 
 
 
gggc
            
               Text 
                 
- gggc, GH 광교 기회캠퍼스 _설계공모 입선작(4위) 
 2024 / Yeongtong-gu, Suwon-si, Gyeonggi-do, Republic of Korea
 느슨한 연대, 의도된 틈, 연결되는 감각들
 광교신도시의 끝자락에서
 GH 광교 기회캠퍼스는 공사 직원 및 지역청년들의 거주지이자, 주변주민들도 이용이 가능한 커뮤니티 시설로서 새로운 유형의 공동주택이다. 그러나 대지는 광교신도시의 북쪽 끝자락에 외롭게 자리잡고 있으며 남북으로 이어지는 광교로를 중심으로 서쪽으로는 주변 아파트단지가 남동쪽으로는 절토된 산지의 경사면을 바라볼 수 있다. 도로와 산지로 주변과 단절된 맥락에서 우리는 의도적인 틈을 만들고 그 사이를 느슨한 연결과 만남의 가능성을 가진 공간으로 제안하고자 한다.
 느슨한 연대를 위한 의도된 틈
 대지는 남북으로 길고, 남동쪽으로 절토된 경사지가 위치하고 있다. 채광과 조망에 유리하도록 한 개의 동으로 구성하되 단위세대를 3 방향으로 각각 배치한다. 이는 효과적인 코어사용을 가능하게 하고, 그 사이 공용공간의 활용성을 높이게 한다. 커뮤니티공간은 도로레벨에서 바로 접근 가능하도록 하여 방문객 모두가 쉽게 진입할 수 있도록 하였다.
 모두와 함께하는 공간, 자연스럽게 참여하는 공유공간
 도서관과 co-working 공간을 하나로 묶어 2개층의 열린 공간으로 구성하고 카페와 함께 외부테라스를 이용할 수 있도록 하였다. 입주민도 자연스럽게 공유공간을 거쳐가도록 출입구와 코어를 위치를 조정하였으며, 입주민만을 위한 별도의 전용 출입구를 두어 사용상의 편리함을 더하였다. 입주민 출입구는 작은 마당을 중심으로 커뮤니티 라운지 및 코인세탁실, 무인 택배함을 함께 배치하여 두었다. 2층에는 공유오피스 및 세미나실을 두었으며, 피트니스실은 별도의 외부공간을 사용할 수 있도록 배치하였다.
 가로를 쌓아 동네를 만들다. 우연한 스침, 집으로 가는 여정속에서 발견되는 가능성의 공간
 주거매스를 3 방향으로 배치하고 그 사이 공용공간을 최대한 확보함으로써 복도는 멈춤이 가능한 이동공간이 된다. 최대 6미터의 폭으로 이루어진 중복도 공간에 보이드를 만들고, 간단한 식물재배가 가능한 포켓정원과 휴게공간을 두었다. 2-3개층을 하나의 영역으로 조닝하고, 특색있는 외부공간을 더하여 다채로움을 주었다. 엘리베이터에서 내려 집으로 가는 여정속에서 발견되는 가능성의 공간은 거주민들 사이에서의 우연한 스침을 가능케 한다.
 연결되는 감각들_외부계단계획
 복도끝에서 연결되는 외부계단은 공용공간을 수직으로 확장하고 연결한다. 계단참을 넓게 확장하거나 계단의 형태를 변형하는 간단한 제스쳐를 통해 공간적인 풍요로움을 더한다. 이곳에서 변화되는 계절을 느끼고, 자연과 연결되는 감각을 일깨울 수 있게 된다.
 하나의 시스템, 변화되는 입면_파사드 계획
 27 sqm의 단위세대는 경제적인 하나의 타입으로 제한한다. 대신에 다용도 멀티공간을 두어 다양한 싱글라이프 스타일에 대응하도록 하였다. 단순해질수 있는 입면은 실외기실의 위치를 이동시킴으로 변화되는 입면을 갖도록 하여 간결하면서도 다채로움을 주었다.
 커뮤니티 리빙
 삶 속에서 서로 자연스럽게 연결되어 때로는 느슨하게, 때로는 끈끈하게 일상을 공유하며 따뜻한 커뮤니티를 만들어갈수 있는 공간이 되기를 희망한다.
 
 
 
 
 
 
 
 
 
 
 
 
 
 
 
 
 
 
ycpt
            
               Text 
                 
- ycpt, 예천 신도시 주차타워 
 2023 / Homyeong-eup, Yecheon-gun, Gyeongsangbuk-do, Republic of Korea
 Parking Cube
 예천 신도시 주차타워, 신도시와 사람이 만나는 경계
 예천 신도시 주차타워는 지구단위계획으로 만들어진 신도시에서 도시와 사람을 이어주는 공간으로, 자동차의 속도에서 보행자의 속도로 변화하게 되는 접점이다. 그러므로 신도시 주차타워는 큰 스케일의 건물의 연속된 그림자들로 만들어진 도시의 풍경과 걷거나 산책하는 사람들, 자전거를 타는 모습, 상가에서 나오는 이야기가 있는 모습이 공존하고 있다.
 공공 공간
 예천 주차타워 계획안의 최우선 과제는 차량의 속도와 보행가로의 속도 차이를 극복해 해는 것이다. 따라서 건축물이 주변 건물에 대응하는 큰 스케일의 볼륨을 가지고 있더라도, 보행가로에서 이용하는 사람들에게는 분절된 아늑한 휴먼스케일의 공공 공간을 제공하는 것이 필요하다. 이에 우리는 이 계획안을 통해 보행가로를 오가며 쉴 수 있는 포켓 공간을 만들고, 그 공간에서 건축물 내외부의 공공 프로그램을 이용할 수 있도록 제안한다. 이 포켓 공간을 통해 차량과 보행자와의 완충 역할을 수행하게 된다. 또한 다양한 접근이 가능한 교차점에 위치한 만큼 여러 방향의 진출입구를 조성하여 이용의 편리하도록 계획했다.
 접근성: 자동차와 사람
 자동차는 도청대로(50m)와 새움3로(28m) 도로를 이용하여 접근하며 대지의 동측(16m) 도로를 이용하여 건축물로 진입할 수 있다. 자동차 이용자가 건물에 진입하게 되면 1층 주차장과 마주하게 되며, 주차 동선과는 분리된 건축물 서측에 위치한 차량 경사로를 따라 상부층으로 이동할 수 있다. 각 층에 주차를 마친 방문객은 북동측에 만들어진 보행로와 연결된 다양한 방식의 수직 이동 동선을 이용하여 지상으로 이동할 수 있다. 남측 교차점에는 어귀마당을 계획하고, 자전거 도로와 연계하여 자전거 주차장을 계획하였다. 상가 이용을 마치고 주차장을 방문한 이용객은 인접 건물이 위치한 서측을 제외한 방향에서 모두 접근이 가능하다. 특히 북측의 보행가로에서 주차장으로의 이용객이 빈번할 것으로 판단되어 출입구를 추가로 배치하고 24시간 개방형 화장실을 두어 접근성을 높였다. 또한 대지 형상으로 자연스럽게 만들어진 포켓공간에는 녹지, 계단형 좌석등을 계획하여 휴게 장소로의 역할 뿐만 아니라 소규모 행사도 가능하도록 계획하였다.
 투명성: 도시 그리고 주차타워
 계획안은 도시에서의 인지적으로서 주차타워를 인식하도록 하기 위하여 디자인하였다. 솔리드적인 매스를 지양하고 자동차를 은유적으로 보여줌으로서 자동차의 속도에서도 충분히 주차타워로서 프로그램을 인지 할 수 있다. 건물 내부로는 충분한 빛이 불투명한 폴리카보네이트 사이로 들어오며, 보행동선과 가로에서는 보행자가 다닐 수 있는 길을 시각적으로 연결하여 도시와의 연결성을 가지게 된다.
 합리성: 경제적인 평면
 310대의 주차를 수용하기 위해서는 대지에 가득찬 볼륨을 가지게 되며, 차량과 보행자를 효과적으로 분리하기 위해서 평면적으로 조닝을 분리하였다. 보행가로에 면하는 북동측으로 보행자 동선을 계획하고 나머지 부분을 주차장으로 계획하였다. 1.6 ~ 3.4m 폭으로 구성된 보행로는 차량과는 완전히 분리되고 수직 동선과 다양하게 연결되어 원하는 곳으로 자유롭게 이동할 수 있다. 장애인주차구역은 이 보행로와 접하도록 구성하여 장애인들의 이동을 고려하였다. 주차장은 각 층마다 같은 동선을 가질 수 있도록 하였으며, 주차를 위한 순환동선과 각 층의 이동을 위한 경사로 동선을 분리하여 주차와 이동 동선의 간섭을 최소화 하였다.
 구축: 자동차와 사람의 스케일을 반영한 구조
 주차장으로 인한 큰 볼륨의 스케일과 보행자를 위한 휴먼스케일 사이에서 구축적, 기능적으로 대응하는 것이 계획안의 과제였다. 우리는 자동차 3대가 주차 할 수 있는 7.9m 간격의 모듈을 기본으로 설정하고 이를 반으로 나눈 3.95m 마다 세운 구조를 골격으로 활용하기로 했다. 기둥과 상관없이 주차영역을 자유롭게 배치할 수 있는 가운데 영역의 주차는 확장형으로 계획하여 법적인 주차 대수를 충족하였다. 사람을 위한 수직 동선은 구조 모듈 밖으로 위치하여 도시와 마주할 수 있도록 했다. 각 층에 도달하는 것이 단순히 순환 직통 구조에서 벗어나 길게 연결 되어 지상에서는 양쪽 방향에서 모두 접근할 수 있도록 구성하고 접근성을 높혔다.
 랜드마크 건축: 신도시에서의 주차타워
 지상 1층은 솔리드한 입면으로 건축물의 기단부를 만들고, 상부층은 한옥의 문살 패턴과 같은 구조 개념인 기둥 뒤로 건물의 외피를 형성했다. 주차 타워에서 중요한 요소인 빛, 소음, 매연에 대응하기 위해서 막혀 있는 입면은 저층부에 적용하고, 상부층은 불투명한 폴리카보네이트와 루버를 규칙적으로 배열하여 해결하였다. 그럼으로서 주차장 내부에도 은은한 자연광이 구조와 외피 사이로 들어오고 다양한 국내 기후에 영향을 최소화 하도록 보호해준다. 이러한 외피 시스템은 멀리서 자동차를 타고 오면서 건물을 바라볼 때는 리드미컬한 리듬을 가지고, 보행가로에서 건물을 바라볼 때는 구조적인 합리성과 인지성을 가진다. 차량을 이용하여 방문하는 이용객들 뿐만 아니라 보행자들에게도 상업가로의 랜드마크적 인지성을 가질 수 있기를 기대한다.
 
 
 
 
 
 
 
 
 
 
 
 
 
 
 
 
mshs
            
               Text 
                 
- mshs, 문산 보건지소 및 노인복지관 복합센터 
 2023 / Munsan-eup, Paju-si, Gyeonggi-do, Republic of Korea
 4개의 마당
 문산, 경계의 공간
 대지가 위치한 장소는 주변 아파트가 밀집되어 있고, 문산 도서관, 행정복지센터 및 문산역이 인근에 있어 접근성이 풍부한 곳에 있다. 남측으로는 도로를 경계로 임진강과 산책로가 조성되어 있으며, 도시의 마지막 지점에 위치하고 있다. 문산은 대체적으로 자연 생태가 잘 보존된 지역이지만, 대지 주변은 좁은 도로와 상가, 아파트 등의 건물들 그리고 복잡한 도로레벨이 혼재되어 있는 상황이다. 임진강과 가깝게 위치하고 있지만, 20m의 4차선 도로가 강변 산책로로 접근하기 위한 심리적 저항선을 가지게 한다. 보차 혼용도로를 통해 양쪽으로 진입할 수 있는 대지는 4차선 도로의 레벨에 비하여 상대적으로 낮게 조성되어 있으며, 이에 침수의 흔적이 발견되는 장소이다. 또한 대지 내에 다양한 레벨이 존재하기 때문에 우리는 차량과 보행자의 분리된 동선 계획, 상대적으로 주변보다 낮은 대지 레벨에 따른 대책과 복잡한 도시를 위한 여유 공간이 필요한 장소라고 판단하였다. 따라서 제안하는 계획안은 보행자와 차량의 동선을 레벨차를 이용하여 분리하고, 보행자 동선을 보존하여야 하는 수목 공간과 연계하고자 한다.
 + 매스와 4개의 공공공간
 대지는 남서측 4차선 도로와 북서측 2차선 도로에 면해 있으나 레벨차로 인해 침수에 취약하고, 주변의 많은 주차 수요로 인해 혼잡한 동선체계를 가지고 있었다. 우리는 이곳을 새로운 공공 장소로 만들기 위하여 기존의 주차공간을 동측으로 돌리고 침수에 대응 가능하도록 기단 위 십자형태의 매스를 배치함으로써 각기 다른 성격을 가진 4개의 외부공간을 계획하였다.
 외부공간 1_진입마당
 +5.6 레벨에서 도보로 접근가능한 북측에서 대지에 진입하여 완만한 경사로를 통하여 자연스럽게 진입마당으로 들어올 수 있으며, 시민들의 휴게공간으로 활용가능한 벤치와 필로티 아래로 그늘공간을 제공하고 있다. 건물의 1층은 1.2미터 레벨차이를 두고 계단과 경사로를 따라 연결되며, 자연스럽게 안뜰 정원과 주출입구 그리고 카페로 접근할 수 있다. 남측으로는 커뮤니티 계단과 힐링언덕으로 연결된다.
 외부공간 2_안뜰정원
 보호 수목을 중심으로 구성된 안뜰정원은 +8.0 레벨에 계획하였다. 진입마당에서 경사로와 계단을 통하여 접근할 수 있으며, 동측 주차장에서도 완만한 경사로를 통하여 누구든지 이용할 수 있도록 계획하였다. 안뜰 정원에 접하는 곳에는 카페를 두어 자연스럽게 누구나 이용할 수 있는 정원으로 만들고자 하였다. 안뜰정원에서 연결된 주차장은 기존 대지 레벨을 활용하여 +7.1 레벨에 계획하였다. 추후 증축 주차장 및 사무실을 위한 공간을 마련하고, 증축이 진행되었을 경우 안뜰 정원이 보건지소 및 노인복지관과 주차장 사이 버퍼공간이 되어 공간적 여유를 가질 수 있게 된다.
 외부공간 3_커뮤니티 계단
 진입마당에서 필로티를 지나 연결되는 커뮤니티 계단은 남서측 진입도로와의 레벨차를 극복하며, 대형버스에서 접근하는 동선을 진입마당으로 연결시켜주는 역할을 수행하며, 계단을 활용하여 다양한 이벤트 공간으로 활용성을 가진다. 커뮤니티 계단 옆으로 형성된 둔덕은 기존 대지의 형상을 복원하고, 임진강으로 시각적인 연결을 확보하여 풍요로운 외부공간이 되도록 의도했다.
 외부공간 4_놀이마당
 남측에서의 차량 진입을 매스 하부로 통과 동선으로 계획하여 외부 공간에서 차량과 보행자의 간섭을 레벨 차이를 활용하여 해결하였다. +8.0 레벨에 형성된 외부마당은 안뜰정원과 연결되며, 평소에는 놀이 마당으로 활용할 수 있으며, 펜데믹 상황에서는 선별진료소로 전환된다. 독립적인 외부 동선을 가지고 보건소의 서비스 코어와 근접하여 효율적인 관리가 가능하다.
 효율적인 방사형의 내부 동선체계
 보건소와 복지관의 주사용자는 이동에 제약이 있는 시민들이 많을 것으로 예상됨에 따라 단일코어를 중심으로 각 프로그램으로 방사형으로 뻗어 나가는 형태로 단순하고 명료한 동선체계를 제시한다. 동선의 끝은 발코니 또는 외부계단으로 확장되며, 각 층마다 독립적인 외부공간을 가지게 된다. 각 층의 발코니 공간은 증축 가능한 영역으로 설정하였다.
 1층은 모두가 사용하는 공용공간으로 로비와 카페사이에 연결통로를 두고 수직으로 높은 천정고를 가진 공간을 함께 두어 공간에 다양한 감각을 더하였으며, 2층은 복지관으로 3층은 보건소 전용공간으로 계획하여 수직적으로 프로그램을 분리하였다. 4층에는 직원들을 위한 사무공간을 두어 이용자와 직원들의 공간 분리적 효율성을 가지도록 했다. 보건지소인 3층과 직원 공간인 4층 공용부에 계단과 보이드를 두어 두 공간의 연결성을 가질 수 있도록 계획했다.
 도시와 건축
 공공건축이 가져야 하는 중요한 점은 공공 건축물로 인해 도시가 보다 나은 환경으로 변화되어야 한다는 점이다. 이 건축물이 도시에서 의미 있는 공간이 되기 위해서는 보건지소와 복지관 시설 이용객 뿐만 아니라 지역 사회에도 열린 공간을 가진 공공건축 유형이 필요하다. 따라서 우리는 복잡한 대지 위에 + 형태의 간결한 제스쳐로 다른 특성을 가진 4개의 외부공간을 가진 복합센터를 제안한다. 사람이 다니는 도시의 작은 광장이자 소규모 근린 공원이 되기를 희망한다.