 
 
 
 
 
 
 
 
 
 
 
 
 
 
 
 
 
 
dfsc
            
               Text 
                 
- dfsc, 여의도 디지털금융지원센터 
 2023 / Yeouigongwon-ro, Yeongdeungpo-gu, Seoul, Republic of Korea
 열린 공간, 열린 풍경
 여의도와 여의도 공원
 여의도는 여의도 공원을 중심으로 동측은 높은 규모의 국제금융지구가 서측에는 이를 지원하는 낮은 규모의 공공·업무시설이 있다. 중심의 여의도 공원은 이 업무지구 사이에 열린 장소로서 시간에 따른 다양한 도시적 행위가 일어나는 것을 완충해주며, 수변으로 연결해주는 역할을 수행하고 있다. 이 공간은 점유가 아닌 공유를 통해 사람들이 교류하고 다양한 역할을 하는 커뮤니티 공간이 된다.
 THE SITE
 프로젝트의 대지는 여의도 공원과 한강시민공원이 인접하는 곳에 있어 주변 공원 녹지와 수변 공간으로의 접근성 및 조망권이 매우 우수하다. 주변에 비해 작은 규모의 대지지만 여의도 공원과 한강시민공원이 연결되는 결절점에 있으며 시민들이 조망하기 좋은 위치에 있다. 우리는 불특정 다수가 이용하는 공공건축물이 아닌 특정인이 사용하는 공공건축물은 도시의 풍경에서 어떻게 기여해야 하는가에 대한 고민에서 시작하였다. 한강 수변공원에서 산책하는 사람, 여의나루역에서 걸어오는 사람, 마포대교에서 차를 타고 여의도 방향으로 오는 사람들이 디지털 금융 센터를 바라보았을 때 등 다양한 방향과 위치에서 보이는 이 대지는 여의도에서 중요한 상징성을 가지게 되는 위치에 있다. 이러한 대지적 특성은 전통 한국 건축의 배치에서 탑의 위치와 유사함을 발견했다. 규모는 크지 않지만, 전체 배치의 중심에 위치하며 화려하진 않지만 상징적인 역할을 수행한다. 우리는 이러한 역할을 현대 건축으로 재해석 하고자 하였다. 화려한 여의도의 건물에 대비하여 최대한 간결한 볼륨의 매스를 구성하되, 하나의 입방체에 3개의 열린 공간을 가진 계획을 제안한다.
 디지털 금융지원센터
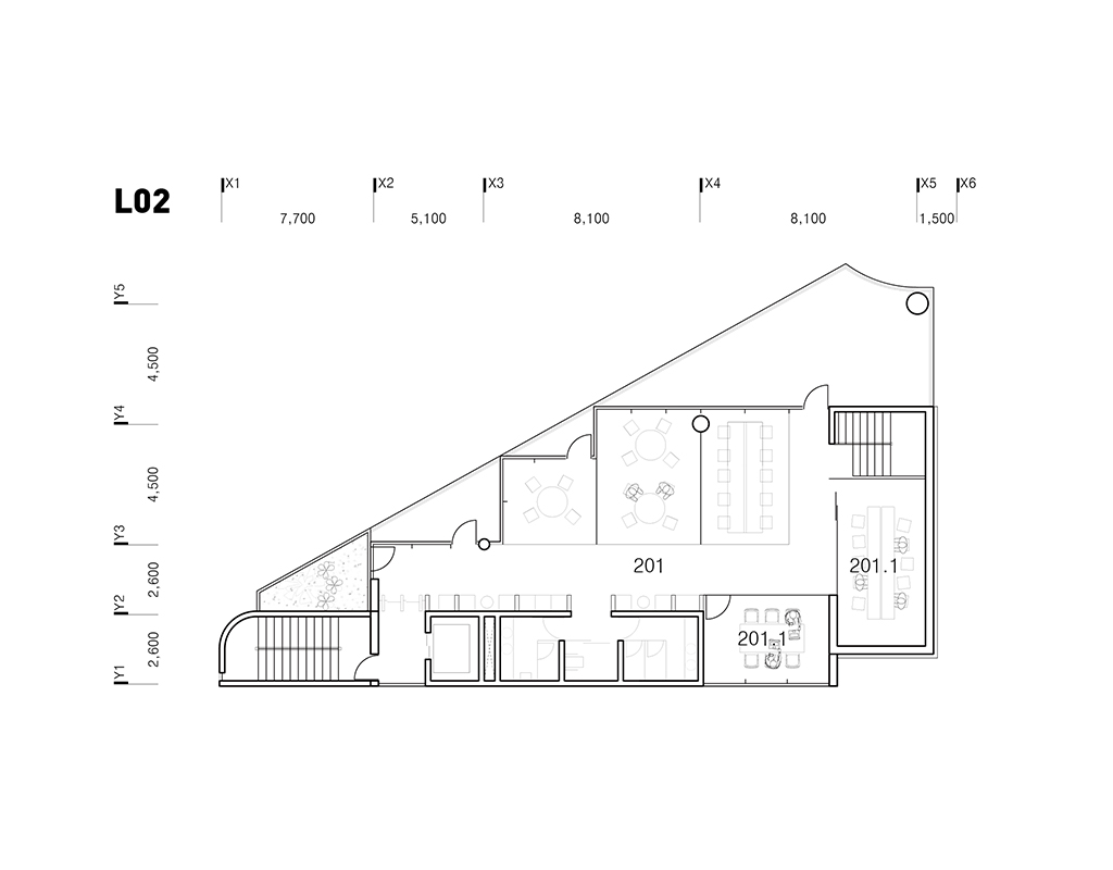
 디지털 금융지원센터는 디지털 금융 대학원인 교육시설과 기업지원시설인 업무시설로 구성되어 있다. 두가지의 시설은 운영 주체는 동일하지만 독립적인 기능을 수행함과 동시에 상호 보완적인 공간이 요구 된다. 우리는 수직적으로 나누어 두가지 시설을 조닝하고 두 시설 사이에 완충 공간인 ‘공유 라운지’ 공간을 계획했다. 그리고 지면층과 최상층에 열린 공간을 두어 공유 공간을 구성했다. 그리하여 각 기능의 독립성과 연계성을 동시에 확보할 수 있었다.
 디지털 금융 지원센터의 공유공간
 지침서가 제시하는 공간기획의 방향은 각 층 별로 개별적인 공유 공간(라운지)을 만드는 것에 기초한다. 그러나 제한된 대지 면적으로 인하여 높은 활용도의 공유 공간이 되기는 어려운 조건이라고 판단했다. 우리는 이 해결책을 여의도의 도시조직에서 여의도공원이 가지는 특징에서 실마리를 얻었다. 흩어진 공유 공간의 조각을 하나로 모아 공유 공간으로서 유효한 크기의 공간으로 전환하고자 한다. 그리하여 3개의 모여진 공유 공간을 제안하여 점유하지 않는 공유하는 공간이 되도록 계획했다.
 3개의 열린공간
 - Common Ground
 지상층은 공용회의실과 코워킹 공간 및 컨퍼런스 공간을 하나로 엮어서 '커먼 그라운드'로 구성하였다. 야외에 조성된 커뮤니티 가든과 가변적인 개방성 창호로 구성하여 주변시설과의 연계가 가능한 열린 포럼으로 제안한다. 사람들이 자유롭게 다닐 수 있는 공공의 성격을 가진 공간으로 이용하는 사람들 뿐 아니라 외부공간에서 쉽게 유입이 될 수 있다. 상부층으로 이동할 수 있는 코어에는 보안게이트를 설치하여 허락된 인원에 한에서만 출입할 수 있도록 보안을 설정했다.
 - Flexible Floor
 기업지원시설과 금융대학원의 사이에는 개별적으로 나눠져 있던 라운지 공간들을 하나로 묶어 열린 라운지로 구성하고, 시간에 따라 유동적으로 사용이 가능한 공간으로 제안한다. ‘커넥팅 플로어’ 공간은 2개층으로 구성되어, 내부 계단을 이용하여 자유롭게 사용할 수 있으며, 각 개별층의 이용을 사용자별로 나누어 운영할 수도 있다.
 - Sky Lounge
 기업지원시설 및 금융대학원 모두에게 열린 공간으로 주로 휴게와 조망 혹은 특별한 행사에 맞춰 사용이 가능한 별도의 공간이다. 전망 뿐만 아니라 하늘로도 열린 외부 공간을 최대한 확보하여, 자연과 가까운 공간이 될 수 있도록 계획했다.
 공간의 구조
 각 층별로 자유로운 공간 구성이 가능하도록 코어부를 삼각형 건물의 가장 긴 장변축으로 구성한 뒤 최소한의 기둥으로 구조를 설정했다. 열린 공간 뿐만 아니라 각 프로그램이 위치한 평면에서도 적극적인 발코니 계획을 통해 외부와 접촉하는 면적을 늘리고자 하였다. 각 실은 설치, 해체가 용이한 건식벽으로 구성하여 사용자의 요구에 따라 자유롭게 구성할 수 있도록 했으며, 매층마다 동일한 코어를 구성하여 이용자들이 쉽게 공간을 이해할 수 있도록 계획 했다.
 소통 가능한 입면
 파사드는 열린 공간과 대비를 이루는 루버를 이용하여 작은 단계의 스케일을 만들어 낸다. 프로그램이 위치한 곳에 수직으로 설치된 루버를 통하여 조도를 적절하게 조절하고 빛의 난반사를 줄여 편안한 공간이 되도록 하였다. 작은 스케일의 루버의 집합체는 방향에 따라 하나의 솔리드한 면으로 인식될 수 있으며, 이곳에는 시민들에게 환경이나 금융과 관련된 간단한 정보를 전달할 수 있는 디지털 LED파사드를 설치하여 금융센터에 대한 이미지를 나타낼 수 있도록 제안한다.
 열린 공간, 열린 풍경
 다양하게 구성된 열린공간들은 사용자와 시간에 따라 다르게 활용될 것이다. 또한 주변의 풍경에 대비하여 다른 인식의 풍경을 가지고 올 것이다. 열린 공간은 사용자에게 한강으로의 파노라마 뷰를 바라볼 수 있도록 하고, 이 열린 공간으로 인해 도시적으로 열린 풍경을 만들어낸다. 불특정 시민들의 이용이 어려운 공공건축물이지만 이 도시내에서 공공건축물의 역할은 도시적으로 열린 풍경을 만들어내는 것이라 믿는다. 우리의 제안이 시민에게 열린 공간, 열린 풍경으로 인식되어 여의도의 다른 건물들과는 조금은 다른 상징성을 가진 건물이 되기를 희망한다.