기억과 일상의 중첩 _ 가고파 아고라
2021 / Masanhappo-gu, Changwon-si, Republic of Korea
한국 민주주의는 자유와 정의를 열망한 시민들의 피와 땀이 모여 현재에 이르고 있다. 마산지역에서 일어난 3.15의거, 4.11의거 그리고 부마항쟁은 민주화를 향한 열망이 전국적으로 확산되는 도화선이 되었다는 점에서 그 의미가 크다. 해변을 간척하고 들어선 항만시설은 도시경제에 중요한 역할을 하였지만, 바다로의 접근을 차단하고 있었고. 마산만을 돌려 받으려는 마산시민들의 주장은 묵살되어 왔으나 드디어 바다로 접근할 수 있는 친수공간이 시민들에게 다시 돌아오게 되었다.
창원 민주주의 전당은 과거 이 지역에서 일어난 민주화운동의 기억뿐만 아니라 시민의 다양한 행위를 담을 수 있는 현재의 일상이 중첩된 공간이 되어야만 한다. 우리는 전당이라는 이름이 주는 기념비의 이미지를 탈피하고 마당으로 치환되는 시민을 위한 열린 공간으로의 전환을 시도한다.
가고파-아고라
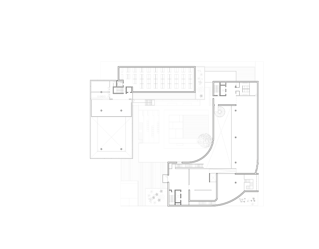
민주화운동의 사건전개양상을 모티브로 삼아 여러 갈래의 길에서 들어오는 시민의 움직임이 모여 아고라를 형성한다. 다양한 토론과 휴식 및 외부 행사가 일어나는 건물의 중심공간이자 바다 공원 내에서 포근함을 제공하는 휴식공간이 되도록 하였다.
전시공간_순환적 선형구성
각 전시실의 시작과 끝에 크고 작은 보조공간들을 두어 운영과 상황에 맞게 동선을 변경할 수 있는 동선체계를 가진 순환적 선형전시방식을 도입하였다. 이는 선택적으로 공간을 분절하거나 혹은 이어서 사용할수 있는 유형으로 다양하게 전시공간으로 재구성 할 수 있게 되어 공간의 높은 효율성과 사용성을 가질 수 있다.
체험으로 함께하는 상설전시공간
상설전시공간은 3.15의거와 4.11 2차 의거의 사건 진행 상황을 모티브로 삼아 이를 건축 공간적 체험으로 전환하고 김주열 열사의 시신 인양 장소와 시각적으로 연계하여 전시의 한 부분으로 참여시킨다. 크게 발단 – 전개 - 발전 – 상승 – 절정으로 이루어진 순서에 맞춰 다시 작은 4개의 공간으로 나누어 공간을 구성하였다.
시민에게 열린 휴식공간_가고파 데크
모든 전시가 끝난 후 관람객은 자연스럽게 전망 데크로 도달하여 바다를 전면으로 마주하게 된다. 100여년 만에 돌아온 마산만의 친수공간을 오랜 기간 항쟁의 결과로서 쟁취한 민주주의 숭고한 가치로 치환하고 자유의 기쁨을 만끽하는 휴게공간이 될 것이다.