MMSC, 소상공인 지원센터
2019 / Seongsu-dong, Seongdong-gu, Seoul, Republic of Korea
‘성수동 전성시대’
성수동은 1960년대 산업화 정책에 따라 준공업지역으로 지정된 이후, 1970년대부터 수제화 업체들이 상대적으로 지가가 저렴한 성수동으로 모여들어 영세한 부속업체 부터 구두관련업체, 가게 등이 밀집하게 되었다. 제품의 디자인부터, 개발, 출고, 판매에 이르기까지 완결된 시스템이 구축된 국내 제화산업의 최대 집적지로 자리잡았다.
‘산업의 변화’
1980년대 후반 공장자동화 시스템과 제조산업이 쇠퇴하기 시작하면서 대형 제화업체들은 수도권 공장으로 이전하게 되고, 수제화 제작이 노동력부족 및 수요 부족으로 쇠퇴함에 따라, 소규모 영세업체들이 운영에 어려움을 겪으며 도심이 쇠퇴하기 시작하였다.
‘다시 성수’
최근 도시재생의 분위기와 함께 성수동의 버려진 창고나 상가등에 문화예술 복합공간들이 들어서기 시작하고 도심지역특화 산업으로서 지역 경제 활성화 방안으로 성수동의 수제화산업이 지정되면서 다시 활기를 찾게 되었다.
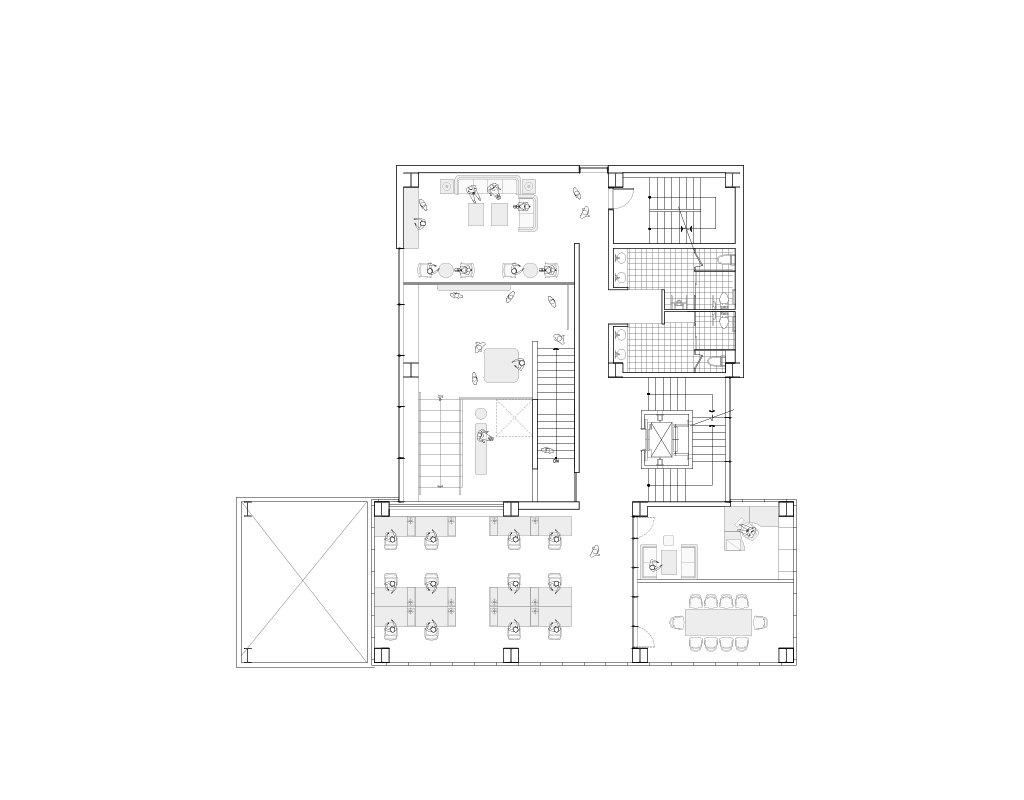
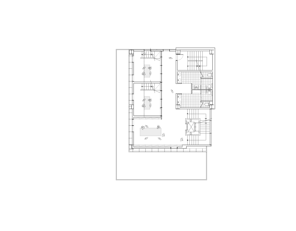
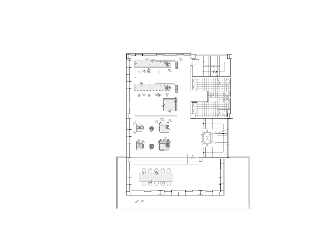
하지만 이러한 분위기가 오랜 기간동안 이어지고, 지속가능한 발전이 이루어지기 위해서 제조 공방과 문화 예술 복합 공간이 함께 공생 할 수 있는 공간을 제안한다.