



















yjcp
Text
YJCP, 영주 더 이음 어울림센터
2022 / Hucheon-dong, Youngju-si, Republic of Korea
YOUNGJU CITY
영주시는 예로부터 철도 교통의 중심지로서 기차역을 중심으로 도시가 발전하였다. 본 기차역이 있던 원도심-영주동은 휴천동으로 영주역이 옮기지기 전까지 영주시의 번성기를 담당하고 있었다. 1973년 영주역이 휴천동으로 이전함에 따라 자연스럽게 휴천동으로 새로운 도심이 이동하면서 도시가 확장되었다. 중앙선과 경북, 영동선이 만나는 요충지에 있는 영주역은 유동 인구가 많은 지역이었다. 그러나 1999년 중앙고속도로의 개통과 더불어 철도의 이용성이 떨어지기 시작했고, 2010년대 가흥신도시가 형성되면서 서천 서쪽 새로운 도심으로 도시 중심이 이동했다. 영주시에서는 구도심이 된 영주역 일대를 역세권 도시 재생 뉴딜 사업으로 지정하여 KTX 개통과 맞물려 상권의 재활성화를 위한 움직임을 시작하였다.
구도심 도시 재생사업 - 도시의 연결
역세권 도시 재생 뉴딜 사업 영역에 포함되어 있는 계획부지는 영주역 광장앞 중심도로인 대학로의 이면도로에 위치하고 있으며, 상업지역과 주거지역의 결절점에 놓여 있다. 따라서 역광장으로 부터 경북전문대학교까지 이어지는 연결 역할을 수행하여야 하며, 주거지와 상업지의 경계선으로서 성격이 다른 두 영역의 교차점을 극복하여야 한다.
휴천 공영주차장 + 더 이음 어울림센터
공영 주차장은 연결점의 역할을 수행하기에 적절한 프로그램이다. 차량을 이용해 도착한 사람들은 주차장이 시작점이 될 수 있다. 더 이음 어울림센터에 목적성을 가지지 않은 사람들도 이용할 수 있고, 열린 공간으로서의 가능성을 탐구하여 모두가 공유할 수 있는 공간을 제시하고자 한다. 이는 차량을 이용하지 않고 보행으로 접근하는 사람들도 포함하여 고려 한다.
DESIGN PROCESS
필요한 최대 볼륨의 매스는 분절된 도시 조직에서 큰 볼륨을 차지한다. 공용주차장과 더 이음 어울림센터를 매스로 분리한 후 공영 주차장을 대지 북쪽, 더 이음 어울림센터는 남동쪽 도로변에 L자로 구성하여 도시와의 연결점을 만들어내고자 하였다. 공영 주차장의 매스감을 상쇄하기 위해서 도로변에 위치한 더 이음 어울림센터 입면을 적극적으로 열어 주변으로 시선을 확장하고자 하였다. 또한, 계획 대지로 접근할 수 있는 다양한 출입로를 만들어 어느 방향에서도 건물을 이용할 수 있도록 하였다.
PROGRAM
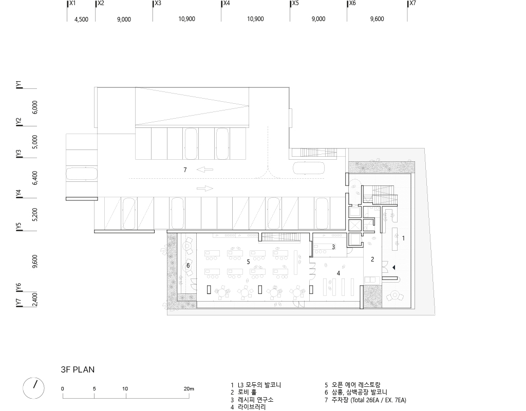
공영주차장의 거대 볼륨은 주변의 분절된 매스에 가려지게 하여 역설적으로 관계를 형성한다. 거리의 눈높이에선 낮은 층고계획으로 낮게 배치되어 도시의 경관을 그대로 유지하고 있다. 도로변에 대응하는 더 이음 어울림센터는 남쪽은 프로그램 매스 동쪽은 모두의 발코니로 계획하여 명확한 조닝계획으로 사용자들이 이용하기 편리하도록 계획했다. 모두의 발코니는 외부계단으로 접근하여 직통계단의 기능성과 더불어 크고 작은 도시의 휴게 공간을 제공함으로서 목적성을 가진 사람 뿐만 아니라 산책자들도 머물고 갈 수 있는 도심의 쉼터를 만들고자 하였다. 부지 북쪽에서 골목길을 통하여 들어올 수 있는 포켓공원은 1.2m 단조정을 통하여 아늑하고 빛으로 충만한 공원으로 계획하였다.
동선 계획
보차혼용도로에 위치한 계획부지는 차량과 보행의 간섭이 불가피하다. 우리는 계획대지내에서 최대한 차량과 보행 출입동선을 이격하여 서로의 간섭을 최소화하고자 하였다. 보행자가 주로 다니는 사거리에 열린 놀이마당과 주출입구 그리고 외부 계단을 계획하여 보행자의 여유공간을 확보할 수 있었다. 외부 계단은 누구에게나 열려있으며 각 층의 내부 프로그램은 독립적인 출입구를 두어 각각 접근이 가능하도록 하였다. L1층의 도로와 만나는 지점에 있는 프로그램들은 직접 출입이 가능하도록 하였다. 주출입구를 통하여 수직이동한 보행자는 각 층의 로비홀에서 프로그램으로 진입이 가능하며, L4층은 발코니로 연결된다. 각 주차장을 이용하여 접근하는 보행자는 동측 코어를 이용하여 엘리베이터 또는 계단을 이용하여 위/아래 주차장 레벨로 출입이 가능하다. 주차장 레벨과 L1, L3층은 동일 레벨, L2층은 반층이 엇갈려 있으나 모두 원하는 레벨로 쉽게 이동할 수 있도록 하였다.
외부 발코니 계단
더 이음 어울림센터가 도시에서 수행하여야 하는 역할은 도시의 연결성에 있다고 판단했다. 프로그램의 목적성을가지고 오는 사람들과 산책하는 사람들의 교차점을 만들어주기 위하여, 모두의 발코니를 구성하여 누구나 접근가능한 Semi-public 공간을 계획했다. 이를 위하여 결절점에서 직선 계단으로 오르는 것으로 시작하여 다양한 방향으로 돌아 올라가는 계단을 구성하여 도시의 수직적 경험 뿐만 아니라 다양한 각도의 풍경을 바라보며 미처 알지 못했던 도시의 풍경을 발견할 수 있기를 의도했다.
Parking lot
사거리와 가장 멀리 떨어진 곳에 주차 진출입구를 계획하였다. 인근 주택의 차량 진출입 소음 저감을 위하여 일정 거리 이격하여 담장과 조경을 계획하고, 반대편에 주차관리실을 구성하였다. 각 층마다 장애인 주차장을 코어 인근으로 배치하고, 동일열에 확장형주차를 고려하였다. 주차장 독립적으로 엘리베이터와 전용 계단을 설치하여 주차장 이용이 편리하도록 하였다. 차량 경사로는 같은 위치에 반복되어 입출차의 혼선을 최소화 하였고, 벽체 사이에 오픈 구간 및 타공 판넬을 두어 답답한 환경을 개선하고자 하였다.
주차장에서 더 이음 어울림센터로 진입하는 과정에서 모두의 발코니를 지나면서 다양한 공간을 마주할 수 있다. 이는 기존의 공영 주차 건물의 일상적 공간에서 벗어나 다양한 공간을 경험하고 문화적으로 풍요로운 장소에 왔다는 인식을 하게 할 것 이다.